あすかシルバーホームの費用・入居情報
あすかシルバーホームの入居金、月額費用で「何歳まで資金がもつか」はソコスモの無料「長生きシミュレーション」で確認できます。
あなたの資金が何年もつか「長生きシミュレーション」で確認できます。

あすか福祉センター中ノ島外観

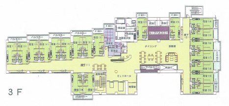
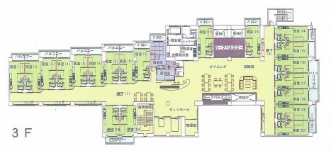
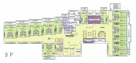
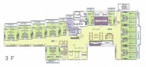
あすかシルバーホーム3F見取り図

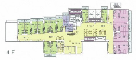
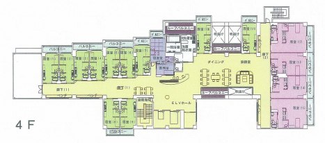
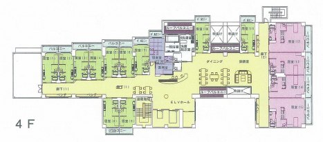
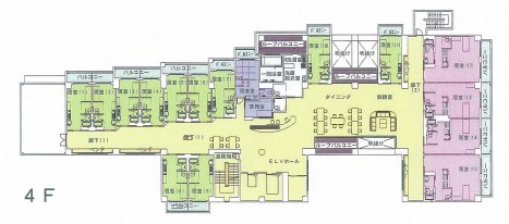
あすかシルバーホーム4F見取り図
アクセス
住所
島根県益田市中島町イ1454番地1あすか福祉センター中ノ島
交通手段
| 公共交通機関 | JR山陰本線益田駅からバスで15分降車後、徒歩2分 |
|---|---|
| 自動車 | ― |
| 来訪者用駐車場 | ― |
施設概要
| 施設名 | あすかシルバーホーム |
|---|---|
| 施設種別 | サービス付き高齢者向け住宅(サ高住) |
| 開設年月日 | 2009年6月1日 |
| 住所 | 〒698-0043 島根県益田市中島町イ1454番地1あすか福祉センター中ノ島 |
| 電話番号 | 0856-23-3320 |
| 特定施設について | 特定施設でない |
|---|---|
| 築年月日 | 2009年5月31日 |
| 地上階数 | 5階 |
| 建物構造 | RC(鉄筋コンクリート)造 |
| 居室総数 | 35室 |
運営事業者
| 事業者名 | あすかシルバーホーム |
|---|---|
| 住所 | 〒698-0043 島根県益田市イ1454番地1 |
益田市の介護施設の料金相場データ更新 2025年11月30日
| サービス付き高齢者向け住宅(サ高住) | 入居0万円~24万円 月額4.4万円~19.3万円 相場傾向について詳しく見る 益田市のサービス付き高齢者向け住宅(サ高住)の入居時の相場は15万円と、全国相場12万円と比較して3万円安くなっています。 また、月額の相場は13.7万円と、全国相場13.3万円と比較して0.4万円安くなっています。 |
|---|---|
| グループホーム | 入居―万円 月額3.1万円~4.9万円 相場傾向について詳しく見る 益田市のグループホームの入居時の相場は―円と、全国相場14万円と比較して―円安くなっています。 また、月額の相場は4.1万円と、全国相場4.5万円と比較して0.4万円安くなっています。 |
| 介護付有料老人ホーム | 入居―万円 月額4.5万円 相場傾向について詳しく見る 益田市の介護付有料老人ホームの入居時の相場は―円と、全国相場280万円と比較して―円安くなっています。 また、月額の相場は4.5万円と、全国相場7.5万円と比較して3万円安くなっています。 |
| ケアハウス | 入居―万円 月額0万円~9.7万円 相場傾向について詳しく見る 益田市のケアハウスの入居時の相場は―円と、全国相場―円と比較して―円高くなっています。 また、月額の相場は7.1万円と、全国相場7.3万円と比較して0.2万円安くなっています。 |
よくある質問
益田市で要介護に応じた老人ホームの種類を教えてください
要介護度によって介護保険の範囲内で受けられるサービスや支給限度額が決まります。また、特別養護 老人ホームなどの公的施設は「要介護3以上」であることが入居の必須条件となっています。 老人ホームを探す際には、入居される方の要介護度をしっかり把握した上で、高齢者住宅の看護・医療 体制について確認しましょう。
益田市の老人ホームの相場はどのくらい?
益田市の老人ホームの相場は「入居一時金」が15万円、「月額利用料」が4.4万円となっています。(2025年11月30日時点)
老人ホームには「民間施設」と「公的施設」の2種類があり、公的施設は所得によって費用が決まる仕組みです。一方、有料老人ホームやサービス付き高齢者向け住宅などの民間施設の費用プランは、運営する法人によってさまざまです。
益田市で認知症の症状が出ていても入居できる施設はありますか?
益田市の認知症の方を受け入れている施設を、1件掲載しています。(2025年11月30日時点)
認知症が進行してから、受け入れ可能な施設や住まいを探すのは大変ですので、自症状の進行を想定して、重度まで対応できるところを選んでおくと安心です。
老後の資金がどれくらい持つか不安です。希望する施設に何歳まで入居できるか知りたい。
ソコスモの「長生きシミュレーション」で、年齢・貯蓄・年金額から何歳まで入居できるかを試算できます。https://www.koureisha-jutaku.com/socosmo/simulation
ソコスモの施設順位はどう決まりますか?紹介料で変わるのですか?
利用者ニーズに沿うマッチング率が高い施設から表示します。紹介料の大小による順位変更は行いません。マッチング検索はこちら:https://www.koureisha-jutaku.com/socosmo/search/matching
介護の負担を分担するために、ちょうど良い場所の施設を探したい。
「移動時間で探す」では、介護者を考慮した2地点からの移動時間で施設を検索できます。https://www.koureisha-jutaku.com/socosmo/search/time
施設から紹介料を受け取らないのはなぜですか?
ソコスモは紹介料を受け取らず、施設運営会社からの掲載料で運営しています。公平・公正な表示を重視しています。https://www.koureisha-jutaku.com/socosmo/guide/socosmo-about
施設紹介事業者としての届出や準拠はありますか?
高齢者住まい事業者団体連合会(高住連)の「高齢者向け住まい紹介事業者届出公表制度」の遵守項目に沿って運営しています。https://www.koureisha-jutaku.com/socosmo/sitepolicy
ソコスモの情報はどのように監修・更新されていますか?
高齢者住宅新聞社と連携し、施設運営会社からの情報提供をもとに内容を確認・更新しています。https://www.koureisha-jutaku.com/socosmo/guide/socosmo-about
島根県の市区町村から探す
「老人ホーム・介護施設の選び方・手続き」アクセスランキング
- 高齢の母が骨折で入院!退院後、一人暮らしの生活は難しそう…
- 死ぬまでにかかるお金を老人ホームの費用を含めて計算
- 両親共に元気だが90歳代。老人ホーム選びを始めたい
- 要介護はいくつまで? 要支援1から要介護5までの7段階とは
- 自立型有料老人ホームとは? 健康型・住宅型・介護付きの違い
- 父親が認知症と診断…母一人で介護できないし独居生活も心配
- 年老いた両親の面倒はどう見る? 別々の介護施設にならない方法
- 認知症が進行して有料老人ホームから特養への転居を求められた
- 親を介護施設に入れたいが特養など老人ホームの空きがない…
- 特養・老健・介護療養型医療施設・介護医療院の費用の違い
- 軽費老人ホームとは? A型・B型・一般型ケアハウスの違い
- サービス付き高齢者向け住宅(自立者向け)とは
- 老人ホームへの入居を拒否する認知症の母親の住み替えはどう説得?
- 老人ホームの利用権方式など契約形態や支払い方法
- 離れて暮らす高齢の母親の一人暮らし。頭も体も弱ってきて心配